Nur für den Dienstgebrauch

Beschreibung und Betriebsvorschrift

für

Treibölanlage, Druckwasseranlage und Bunkereinrichtungen

der

U Boote Bauart VIIC

Prüf-Nr.

Nur für den Dienstgebrauch!

Beschreibung und Betriebsvorschrift

für die

Treibölanlage

der Firma

Fried. Krupp Germaniawerft A.G., Kiel-Gaarden

der

O-Boote Bauart VIIL
Baujahr 1940

Die Übereinstimmung der Beschreibung und Betriebsvorschrift mit der Bauausführung bescheinigt:

KieL, dM £2. OKT. 1940

«wi^attartvnc


Inhaltsverzeichnis

I

Seite

Bildteil

? l-Bauart VIIC

A. Bau- und Betriebsangaben

4 Bb und 4 Stb                   e) Treibölsammelbunker

A. Bau- und Vetriebsangaben

Die Treibölbunker li und 2i sind innerhalb des Druckkörpers zwischen D Spt 29—41 und D Spt 48—63 fest eingebaut. Die Mannlöcher befinden sich bei Treibölbunker li bei D Spt 32 Bb und D Spt 32, bei Treibölbunker 2i bei D Spt 53 und 54 Bb und D Spt 53 und 54 Stb

Inhalt: Treibölbunker li: 37,9 m3, Treibölbunker 2i: 32,8 m3.

Die Tauchbunker liegen außerhalb des Druckkörpers. Tauchbunker 2 Bb und Stb zwischen D Spt 24 bis D Spt 34. Tauchbunker 4 Bb und Stb zwischen D Spt 46 bis D Spt 75. Die Mannlöcher für Tauchbunker 2 Bb und Stb liegen zwischen Spt 38 und 39, und für Tauchbunker 4 Bb und Stb zwischen Spt 57 und 58.

Inhalt: Tauchbunker 2 Bb und Stb je 11,4 m3 und Tauchbunker 4 Bb und Stb je 13,4 m3.

Die Regelbunker Bb 1 und Stb 1 liegen außerhalb des Druckkörpers zwischen I) Spt 34 bis 38. Die Mannlöcher befinden sich zwischen D Spt 36 und 37.

Der Inhalt je Bunker beträgt: 4,7 m3.

Der Treibölhochbehälter ist im Dieselmotorenraum zwischen D Spt 21 bis 24 angebracht und in der Mitte geteilt.

Gesamtinhalt: 730 Liter.

Der Treibölsammelbunker ist im Dieselmotorenraum zwischen I) Spt 25 und 26 mittschiffs eingebaut.

Der Inhalt: 400 Liter. -

-Bauart VH c

^reibung und 7 ebsvorschrift

Die Treibölanlage dient der Versorgung der Dieselmotoren mit Treiböl.

Die innerhalb des Druckkörpers fest eingebauten Treibölbunker 1i und 2i und die außerhalb des Truckkörpers liegenden Tauchbunker 2 und 4 (Bb, Stb) sowie die Regelbunker 1 (Bb, Stb) dienen der Treibölspeicherung. Das Treiböl wird in den Treiböl- und Tauchbunkern auf Wasser schwimmend gefahren, das in Druckwasserleitungen vom Kühlwasserhochbehälter zu den Treiböl- und Tauchbunkern geführt wird. Für die Treibölübernahme und Abgabe wird die Ersatzmotorenölpumpe benutzt. Zum Nachfüllen kann auch die Handkühlwasserpumpe benutzt werden.

Alle Rohrleitungen sind aus Stahl, die Treibölarmaturen aus Stahlguß und die Druckwasser-armaturen aus Bronze.

An der vorderen Stirnwand sind 2 Schaugläser auf weiß emaillierter Platte vorgesehen. Der Behälter hat auf Lb- und 8tb-Seite je I Entwässerungsrohr und je 3 Entlüftungsrohre. Die Entwässerungsrohre sind durch je einen Hahn absperrbar. Die Entlüftungsrohre sind auf Bb und Stb zu je einer Leitung vereinigt; sie führen mit den Entwässerungsrohren über einen gemeinsamen Trichter nach dem Treibölsammelbunker.

An der hinteren Stirnseite des Treibölhochbehälters ist ein Wechselschalter zum Umstellen auf Füllen und Entnehmen vorgesehen.

Der Treibölsammelbunker hat folgende Anschlüsse:

In der Bunkerdecke ist ein Mannloch vorgesehen.

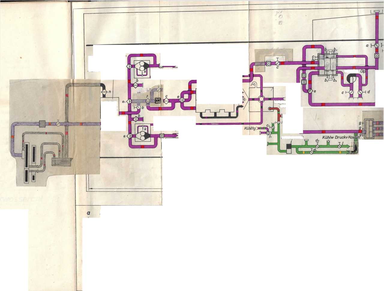
Siehe Schema der Treibölförderanlage und Druckwasseranlage.

Die Treibölübernahme erfolgt durch einen Schlauch, der einerseits an die Übernahmeverschraubung im Oberdeck zwischen 8xt 35 und 36 und andererseits an einen Tankwagen oder an eine außenbords aufgestellte Pumpe angeschlossen wird. Im Notfall kann die Ersatzmotorenölpumpe zur Übernahme benutzt werden.

Bei Übernahme fließt das Öl über ein Filter in den Wechselventilkasten, von hier durch einen Zähler und ein Filter nach der Treibölfördergruppe, von der Fördergruppe nach den Treibölbunkern 11 und 2i und nach den Tauch- und Regelbunkern. In den Leitungen nach den einzelnen Bunkern sind die Ventile: „Bordv Förderanschl Tauchb 2; 4 LV, Stb" und „Förderanschl Regelb Bb, Stb 1 bzw. Treibölb li, 2i (Bb, Stb)" angeordnet, über das Ventil „Eintr Treibölfilter" kann der Treibölhochbehälter von außen gefüllt werden. Wird das Treiböl aber mit der Ersatzmotorenölpumpe übernommen, dann sind die Blindlochflanschen am Treibölwechselventilkasten umzuftellen und die Absperrventile in der Mot Öl Druck u. Saugeleitung am Mot Öl Wechselventilkasten„Eintr Ersatz Mot Olp" und „Austr Ers Mot Olp" zu schließen. Die Pumpe saugt dann über das Ventil „Saugeanschl Treibölübernahmeltg"

. l-Bauart VH 6

-reibung und

77 ebsvorschrift

B. Beschreibung

II. Beschreibung der Einzelteile

c) Treibölübernahnre und Treibölsörderung

3

und drückt über das Ventil „Eintr Treibölzähler Übern" durch Filter und Zähler, wie oben beschrieben, -n die Treibölfördergruppe und von da in die Treibölbunker. Für die Treibölübernahnre mit der Hand-ruhlwasserpumpe sind die Schlauchkupplungen an der Sauge- und Druckleitung der Handkühlwasser-vumpe und die Schlauchkupplungen am Sauge- und Druckraum des Wechselventilkastens durch An-tchlagen von 2 Schläuchen miteinander zu verbinden.

Zur Treibölförderung aus den Treibölbunkern 1i und 2i und aus den Tauchbunkern nach dem Treibölhochbehälter bzw. zu den Dieselmotoren wird das Kühlwasser der Dieselmotoren benutzt. Für diesen Zweck wird das Kühlwasser am Ende der Schalldämpfer in einer gemeinsamen Leitung nach ^em festeingebauten Kühlwasserhochbehälter im Turmumbau geführt. Von hier fließt dasWasserüber die . Truckwwähler Tauchb 2,4 Bb, Stb" nach den Tauchbunkern 2 und 4 Bb, Stb und weiter über das Bordv Druckw Ltg" nach den Treibölbunkern 1i und 2i. In der gemeinsamen Leitung nach den Treibölbunkern 1i und 2i sind vor dem Sicherheitsventil ein Prüfhahn mrd ein Druckwasserschalter vorgesehen und in den einzelnen Leitungen die plombierten Ventile „Druckw Anschl Treibölb 1i bzw. 2i. Die „Truckwwähler Tauchb 2,4 Bb, Stb" sind bei geschlossenen Druckwasserleitungen nach außen offen.

Das Treiböl der Regelbunker Bb, Stb 1 wird mittels Druckluft in den Hochbehälter gefördert I liehe Beschreibung der Truckluftanlage). Zu diesem Zweck sind die Treibölentnahmerohre des Regelbunkers bis an die unterste Stelle geführt.

Vom Kühlwasserhochbehälter führt ein Überlaufrohr nach außenbords. An der höchsten Stelle des Behälters ist eine Entlüftung nach See vorgesehen.

Das Treiböl in den Treibölbunkern wird durch den statischen Druck in der Druckwasserleitung über bie Treibölfördergruppe durch ein Filter und weiter über den Treibölzähler nach dem Wechselventilrasten gefördert. Von hier fließt das Ol durch ein Filter nach dem Treibölhochbehälter.

Von der Treibölförderleitung am Hochbehälter zwischen Wähler, Treibölzähler und Treibölschalter rührt eine Förderleitung über ein Ausgleichgefäß nach dem Junkers-Verdichter im L-Maschinenraum. Filter und Zähler können zwecks Reinigung umgangen werden. Der Zähler kann durch ein rückstellbares Zeigerwerk bei Übernahme auf „Null" gestellt werden.

Das Filter in der Treibölförderleitung nach Wechselventilkasten und der Zähler in der Treibölförderleitung von Hochbehälter nach Zubringerpumpe können zwecks Reinigung durch angeordnete Wähler und Schalter ebenfalls umgangen werden.

Bei den Booten niit Mahle-Spaltfiltern am Treibölhochbehälter fallen die Umgehungsleitungell mit dem „Wähler Treibölhochbeh" fort.

Bei stillstehenden Dieselmotoren kann die Handkühlwasserpumpe für die Treibölförderung benutzt werden. Tie Pumpe drückt zu diesem Zweck in die Dkuckwusferleitüng.T:

Das Treiböl der Tauchbunker kann mit Hilse der Ersatzkühlwasserpunrpe durch entsprechende Schaltung nach den Bunkern 1i und 2i übernommen werden.

Im Notfall kann auch die Ersatzmotorenölpumpe in Verbindung mit der Ersatzkühlwasserpumpe zum Umpumpen benutzt werden.

Ist der Treibölvorrat verbraucht, dann sind die Treibölbunker voll Wasser. Bei der Treibölüber-* nähme wird das Wasser durch die Druckwasser- und Prüfleitung wieder nach außenbords gedrückt. Die Druckwasserleitungen sind bis an die tiefste Stelle des Treibölbunkers geführt.

In den Tauckbunkern enden die Truckwasserrohre in besonderen Kammern, um zu verhindern, daß bei Schräglage des Bootes Ol in die Druckwasserleitungen dringt. Die Hähne „Anschl Treiböl-meßbeh Lt) bzw. 8tb" vor den Treibölzubringepumpen dienen zur Einschaltung des Meßbehälters.

Tie Treibölförderleitung der Tauchbunker erhält unmittelbar vor der Fördergruppe einen Druckmesseranschluß. An der Druckwasserleitung der Treibölbunker li und 2i sind Maximaldrnckmesser angeordnet.

Tie Treibölleitung der Dieselmotoren ist in einer besonderen Beschreibung behandelt.

s) Treibölabgabe und Lenzen der Bunker


or-Ba«artVIic


4


^reibung und


Schema der Treibölentlüftungs-, Peil- und Prüfleitung (Querschnitte).

Die Tauchbunker 2 und 4 Ld, Stb werden über die „Bordv Entl Tauchb 2 und 4 Bb, Stb" und die Regelbunker Dd 1, 8td 1 über die Ventile „Entl Regelb Lb 1, 8tt> 1" entlüftet. Im Dieselmotorenraum nihren die Enllüftungsleitungen über Trichter nach dem Treibölsammelbunker.

In der Zentrale münden die Leitungen in besondere Gefäße. Treibölbunker 1i und 2i werden über die Ausgleichleitungen und die Ventile „Entl Treibölb li bzw. 2i" entlüftet. Die Entlüftungsleitungen münden in vorhandene Gefäße.

Um den Inhalt der Treibölbunker 1i und 2i festzustellen, sind die „Meßschalter Treibölb li bzw. 2i" vorgesehen. Der Schalter ist als Unterwegehahn mit hohlem Küken und einer Bohrung im Umfange ausgebildet. Vom Unterwegeanschluß des Gehäuses führt eine Leitung in den Bunker. Sie endet 50 mm höher als die Druckwasserleitung. Die übrigen 3 Anschlüsse am Umfang des Gehäuses verteilen sich auf die Ausgleich-, Prüf- und Entnahmeleitungen mit der Prüfentnahme der Treibölbunker li bzw. 2i im Qberdeck.

In der Normalstellung steht der Meßschalter auf Ausgleichen, d. h. die Leitung im Bunker ist über den Schalter mit der Ausgleichleitung verbunden. Beim Prüfen ist die Leitung im Bunker über den Schalter und das Bordventil „Prüfanschl Treibölb 1 bzw 2" mit der Prüfentnahme im Oberdeck in Verbindung. Beim Peilen wird das in der Bunkerleitung stehende Treiböl über den Hahn „Meßentn Treibölb li bzw 2i" nach dem Sammelgefäß abgelassen und in den Meßzylinder gegossen. Das mitgeführte Wasser wird durch einen Entwässerungshahn nach dem Treibölsammelbunker abgesührt, bis der Olspiegel auf Null steht. Die am Meßzylinder angebrachten Skalen geben den Inhalt in m3 an. Treibölbunker li und 2i sind einzeln zu peilen. Vor dem Peilen sind die Bunker zu entlüften und nach deni Peilen sind die Meßschalter wieder auf Ausgleichen zu stellen. Der Inhalt der Tauch- und Regelbunker kann nur über den Treibölzähler in der Übernahme- und Förderleitung indirekt ermittelt werden.

Die Prüfleitungen der Treibölbunker li und 2i und der Tauchbunker 4 Bb, Stb führen nach dem Trichter v 8xt 46 im Oberdeck und die Prüfleitungen der Tauchbunker 2 Bb, Stb nach dem Trichter O 8xt 36. Die Prüfleitungen der Treibölbunker li und 2i führen über die „Bordv Prüfanschl Treibölb bi bzw 2i" in der Zentrale und die Leitungen der Tauchbunker über die Absperrventile „Prüfanschl Tauchb 2,4 Bb, Stb" im Oberdeck. Am Auslauf nach den Trichtern sind Prüfentnahmeabsperrungen angeordnet. Tie Trichterablausleitungen werden über einen Schlauch nach außenbords geführt. Die Prüfleitungen in den Treibölbunkern li bzw. 2i enden 50 mm höher als die Druckwasserleitungen und die Prüfleitungen in den Tauchbunkern 2 und 4 Ld, 8tb 100 nun über dem lichten Flutklappenrahmen. Als Prüfleitungen der Regelbunker werden die Ventile „Entl Regelbunker Bb, Stb 1" benutzt. Durch das Höherführen der Prüfleitungen in den Bunkern wird erreicht, daß bei Übernahme und gefüllten Bunkern das Treiböl zuerst aus den Prüfhähnen an den Trichtern austritt, worauf die Übernahme einzustellen ist.

(Siehe Schema 1. Treibölförderanl; 2. Druckwasseranl)

»° Die Treibölabgabe aus Treibölbunker 1i und 2i erfolgt mit der Handkühlwasserpumpe. Das Kühlwasser wird in die Truckwasserleitung gedrückt, wobei das „Bordv Druckw Ltg" geschlossen ist. Das abzugebende Treiböl fließt dann auf dem Wege über Fördergruppe und Wechselventilkasten und die Übernahmeverschraubung durch einen Schlauch nach außen. Während der Abgabe sind die Sicherheitsventile und Druckmesser zu überwachen, damit der Druck in den Bunkern nicht zu hoch steigt. Durch Öffnen der Entlüftungen läßt sich feststellen, ob die Bunker leer sind.

Notfalls kann auch mittels der Ersatzmotorenölpumpe aus den Tauchbunkern und Jnnenbunkern Treiböl abgegeben werden. Zu diesem Zweck ist der Blindlochslansch am Treibölwechselventilkasten umzustellen und die Absperrventile in der Mot Öl Druck- u. Saugeleitung am Wechselventilkasten sind

wt-Bauart vnc

B. Beschreibung

II. Beschreibung der Einzelteile

e) Treibölabgabe und Lenzen der Bunker

1) Sicherheitseinrichtungen

g) Leckül- und Entwässerungseinrichtungen

5

chreibung und riebsvorschrift

zu schließen. Tas Treiböl wird dann von der Ersatzmotorenölpumpe aus den Bunkern gesaugt und durch die Übernahmeverschraubung nach außenbords gedrückt. Ta jedoch die Treibölentnahmerohre an der Bunkerdecke münden, muß mit der Ersatzkühlwasserpumpe Wasser über den Druckwasserkasten in die Bunker gepumpt werden. Um den Widerstand zu vermindern, ist es zweckmäßig, die Siebe aus den beiden Treibölfiltern herauszunehmen. Auch in diesem Fall müssen die Sicherheitsventile und Druckmesser ständig überwacht werden.

Bei Treibölabgabe mittels Zählers ist der Schalter „Treibölzähler Übern" umzustellen. Das Treiböl fließt dann, ohne denWechselventilkasten zu passieren, direkt über das Filter und das Bordventil nach außenbords.

Die Treibölbunker 1i und 2i können mittels der Handlenzpumpe mrd der Ersatzkühlwasserpumpe über das Ventil „Truckwasseranschl Treibölb 1i bzw. 2i" gelenzt werden.

Für den Ausgleich der Volumenänderung bei Temperaturschwankungen sind für die Treiböl-bunker li und 21 je ein Über- und Unterdruckventil vorgesehen. Das Überdruckventil öffnet bei 0,5kg/cm2 Überdruck und das Unterdruckventil bei 0,3 kg/cm2 Unterdrück.

Die Tauchbunker sind über die „Druckw Wähler Tauchbunker 2, 4, Bb, Stb" auch bei geschlossener Truckwasserleitung mit dem Außendruck verbunden.

Die gemeinsame Druckwasserleitung ist im Olmotorenraum am Schott 29 mit einem Sicherheitsventil versehen. Das Ventil öffnet bei einem Überdruck von 0,7 kg/cm52. Durch die offen plombierten Ventile „Druckw Anschl Treibölbunker 11 bzw. 21" steht das Sicherheitsventil ständig mit den Treibölbunkern 1i und 2i in Verbindung, so daß es bei unzulässig hohem Druck sofort öffnet.

Vor dem Tauchen ist das Bordventil in der Druckwasserleitung zu schließen und der Druckwasserwähler auf Tauchstellung zu bringen. Der Prüfhahn „Entleeren Druckw Ltg" ist zu öffnen.

Es muß unbedingt vermieden werden, daß Treiböl in die Bilge gelangt. Nach dem Füllen der Bunker sind der Übernahmekasten im Oberdeck und die Trichter der Prüfleitungen von Treibölresten zu reinigen.

>ot-Bauart VHC

chreibung und kiebsvorschrift

C. Bedienungsvorschrift

  • I.    Betrieb

  • a)    Treibölübernahme mit Pumpe von außenbords

  • b)    Treibölübernahme mit Ersatzmotorenölpumpe

6

C. Bedienungsvorschrift

„Bordb Treibölübern" öffnen

„Druckanschl Treibölübern Ltg" öffnen

„Eintr Treibölzähler Übern" öffnen

„Schalter Treibölzähler Übern" aus Übernahme stellen

„Füllanschl Treibölhochbeh" öffnen

Ventile „Fördergr Regelbunker Bb u. Stb u. Treibölbunker li bzw. 2i" öffnen

„Förderanschl Treibölb 1i Lb, 84b" öffnen

„Förderanschl- Treibölb 21 üb, Stb" öffnen

„Bordb Förderanschl Tauchb 2 u. 4 Lb, 84b" öffnen

„Förderanschl Regelb Bb, Stb 1" öffnen

„Meßentn Treibölb li bzw. 2i" auf Prüfen stellen

„Bordb Prüsanschl Treibölb 11 bzw. 21" öffnen

„Prüfanschl Tauchb 2,4 Bb, Stb" öffnen

„Entl Regelb Lb, 84b 1" öffnen

„Prüfentnahme im Oberdeck" öffnen.

Die Tauchbunker sind gefüllt, wenn Treiböl aus den Prüfhähnen über die Trichter im Oberdeck fließt.

„Bordv Treibölübern" öffnen

„Saugeanschl Treibölübernahmeltg" öffnen

„Blindlochflanschen" umstellen

„Eintr Treibölzähler Übern" öffnen

„Schalter Treibölzähler Übern" auf Übernahme stellen

„Füllanschl Treibölhochbeh" ösfnen

Ventile „Fördergr Treibölb 11 bzw. 2i u. Regelbunker Bb u Stb" öffnen

„Förderanschl Treibölb 11 üb, Stb" öffnen

„Förderanschl Treibölb 21 Bb, Stb" öffnen

„Bordv Förderanschl Tauchb 2 und 4 Bb, Stb" öffnen

„Förderanschl Regelb Bb, Stb 1" öffnen

„Meßentn Treibölb 1i bzw. 2i" auf Prüfen stellen

„Bordv Prüsanschl Treibölb 1i bzw. 2i" ösfnen

„Prüfanschl Tauchb 2,4 Hb, Stb" öffnen

„Entl Regelb Bb, Stb 1" öffnen

„Prüfentnahme im Oberdeck" ösfnen.

Hierbei ist darauf zu achten, daß die Ventile „Eintr Ers Mot Ölp" und „Austr Ers Mot Olp" gGchlossen sind.

Beim Übernehmen von Treiböl ist noch folgendes zu beachten:

Füllen, wenn vorher Tauchbunker voll Wasser.

Flutklappen, Notverschlußklappen, Absperrschieber, Entlüftungen auf. Der Tauchbunker läuft dann bis zur Wasserlinie leer, damit auch die Entlüftungsleitung. Der Wasserstand von 100 mm über den Flutklappen (Verhinderung des Eindringens von Treiböl in die Druckwasserleitung) ist gewähr-' leistet. Flutklappen, Notverschlußklappen, Absperrschieber in der Entlüftungsleitung, Entlüftung schließen. Entwässerung im nicht druckfesten Stück der Entlüftungsleitung zwischen Schieber und Entlüstung öffnen. Anblase- und Ausblaseventile entsprechend sichern. Entlüstungsschrauben in der Anblaseleitung ösfnen. Treiböl in gewohnter Weise aufsüllen.

oot-Bauart VIIC

0. Bedienungsvorschrift

I. Betrieb

b) Treibölübernahme mit Ersatzmotorenölpumpe

o) Füllen des Treibölhochbehälters

d) Treibölabgabe mit der Handkühlwasserpumpe sj Treibölabgabe mit der Ersatzmotorenölpumpe

7

Äreibung und rnebsvorschrift

Füllen, wenn Tauchbunker vorher leer

Notverschlußklappen, Absperrschieber in der Entlüftungsleitung, Entlüftung zu. Tauchbunker durch Offnen der Flutklappen oder Auffüllen mittels Druckwassers so weit fluten, daß Wasser mindestens 100 mm über den Flutklappen steht. Entlüften über die Entlüftungsventile ins Boot. Flutklappen schließen bzw. Drnckwasser abstellen. Treiböl in bekannter Weise auffüllen.

Da beim Füllen der Bunker das Ventil „Eintr Treibölfilter" unter Druck steht, kanu der Treibölhochbehälter durch Offnen dieses Ventiles nebenbei mitgefüllt werden.

â) Treibölabgabe mit der Handtühlwafferpumpe

Mit der Handkühlwasserpumpe aus Treibölbunker 1i und 2i

„Bordv Truckw Ltg" schließen

„Saugeanschl der Handkühlw P aus See" öffnen

„Druckwasser Austr Handkühlw P" ösfnen

„Förderanschl Treibölb li Bb, Stb" öfsnen

„Förderanschl Treibölb 2i Lb, 8tb" öffnen

Ventile „Fördergr Treibölb li bzw. 2i" öffnen

„Druckanschl Treibölförderltg" öffnen

„Druckanschl Treibölübern Ltg" öffnen

„Bordv Treibölübern" öffnen.

Bei Treibölabgabe über den Zähler bleibt das Ventil „Druckanschl Treibölübern Ltg" geschlossen; das Ventil „Eintr Treibölzähler Übern" wird geöffnet und der „Schalter Treibölzähler Übern" auf Abgabe gestellt. Tas Ventil „Eintr Treibölfilter" bleibt während der Abgabe geschlossen.

Mit der Ersatzmotorenölpumpe aus Treibölbunker 1i, 2i, Tauchbunker 2,4 und Recielbunker Bb und Stb.

„Förderanschl Treibölb li Bb, Stb" öffnen

„Förderanschl 2i Bb, Stb" öffnen

„Bordv Förderanschl Tauchb 2,4 Bb, Stb" öfsnen

Ventil „Fördergr Regelb Bb u. Stb" öfsnen

Ventil „Fördergr Treibölb li bzw. 2i" öffnen

„Blindlochflanschen am Wechselventilkasten" umstellen

„Saugeanschl Treibölförderltg" öffnen

„Druckanschl Treibölübern Ltg" öffnen

„Bordv Treibölübern" öffnen

„Bordv Druckw Ltg" öffnen

„Truckw Wähler Tauchb 2 u. 4 Bb, Stb" öffnen (nach Bedarf)

Erfatzkühlwasserpumpe anstellen, damit Druckwasser in die Bunker gelangt und das Treiböl der Ersatzmotorenölpumpe zufließt.

Bei Abgabe über den Zähler ist in der gleichen Weise zu verfahren, wie unter d) beschrieben.

Durch Offnen der „Entl Treibölb li bzw. 2i" und der Bordventile „Entl Tauchb 2,4 Bb, Stb" läßt sich feststellen, ob die Bunker leer sind.

Hierbei ist darauf zu achten, daß die Ventile „Eintr Ers Mot Llp" und „Austr Ers Mot Olp" geschlossen sind.

oot-Bauart VH 6

C. Bedienungsvorschrift

I. Betrieb

f) Umpumpen des Treiböls aus den Tauchbunkern und Regelbunkern nach den Treibölbunkern 1 u. 2

8

chreibung und Triebsvorschrift

Mit der Ersatzkühlwasserpumpe

„Bordv Druckw Ltg" schließen

„Bordv Förderanschl Tauchb 2,4 LH, 8th" öffnen (nach Bedarf)

Ventil „Fördergr Regelb LH u. Stb" öffnen

Ventile „Fördergr Treibölb" öffnen

„Förderanschl Treibölb li Ld, 8th" öffnen

„Förderanschl Treibölb 2i Bb, Stb" öffnen

Meßschalter „Treibölb li bzw. 2i" auf Prüfen stellen

„Bordv Prüfanschl Treibölb 1i bzw. 2i im Oberdeck" öffnen

„Prüfentn Treibölb li bzw. 2i im Oberdeck" öffnen

„Druckw Wähler Tauchb 2,4 Ld, 8th" öffnen

Ventil „Eintr Treibölfilter" schließen

Das Treiböl fließt dann aus den Tauchbunkern nach den Treibölbunkern li und 2i. Das Druckwasser der Treibölbunker li und 2i strömt durch die Prüfleitung über den Trichter im Oberdeck nach außenbord. Vor dem Umpumpen ist durch Peilen sestzustellen, welche Mengen übernommen werden können. Durch Offnen läßt sich seststellen, ob die Tauchbunker leer sind. Sind die Tauchbunker leer, müssen „Druckw Wähler Tauchb 2 und 4" und die „Förderanschl Treibölb li und 2i" geschlossen werden.

Mit der Ersatzmotorenölpumpe (nur im Notfall)

„Bordv Druckw Ltg" schließen

„Bordv Förderanschl Tauchb 2,4 Ld, 8th" öfsnen (nach Bedarf)

Ventil „Fördergr Regelb LH u. 8th" öffnen

„Blindlochflanschen am Wechselventilkasten" umstellen

„Saugeanschl Treibölförderltg" öffnen

Schlauch anschlagen zwischen Druckstutzen Wechselventilkasten und Nottreibölförderanschl

Ventile „Eintr Ersatz Mot Olp" und „Austr Ersatzmot Olp" schließen

„Nottreibölförderanschl" öffnen

„Förderanschl Treibölb 1i Bb, Stb" öffnen (nach Bedarf)

„Förderanschl Treibölb 2i Bb, Stb" öffnen (nach Bedarf)

„Nießschalter Treibölb li bzw. 2i" auf Prüfen stellen

„Bordv Prüfanschl Treibölb li bzw. 2i" ösfnen

„Prüfentn Treibölb li bzw. 2i im Oberdeck" öffnen

„Druckw Wähler Tauchb 2,4 LH, 8th" öffnen (nach Bedarf)

Ventil „Eintr Treibölfilter" schließen

„Ersatzkühlwasserpumpe" anstellen

Die Druckmesser und Sicherheitsventile sind ständig zu überwachen.

Nach jeweiligem Benutzen der Ersatzmotorenölpumpe für Treiböl sind die Pumpe und die Leitungen durch die vorgesehenen Hähne zu entleeren und durchzuspülen. Zu diesem Zweck sind die Ventile in der Druck- und Saugeleitung in der Ersatzmotorenölpumpe zu öffnen.

Die Pumpe saugt dann aus der Motorenölleitung und drückt über einen Schlauch vom Wechselventilkasten in ^en Treibölsammelbunker. Anschließend sind die Blindlochflanschen umzustellen, die Ventile in der Sauge- und Druckleitung der Ersatzmotorenölpumpe zu schließen.

-Boot-Bauart VH 6

Beschreibung und detriebsvorschrift

-—......... -

C. Bedienungsvorschrift

I. Betrieb

g) Treibölförderleitung nach den Dieselmotoren

b) Treibölförderung nach den Dieselmotoren mit Druckluft aus Regelbunkern

i) Lenzen der Treibölbunker li und 2i sowie der Tauchbunker 2 und 4

9

(Aus den Treibölbunkern li und 2i, den Tauchbunkern 2 und 4 und Regelbunkern Bb, Stb)

(Siehe Schema der 1. Treibötförderanl; 2. Druckwasseranl)

„Bordv Druckw Ltg" öffnen

„Förderanschl Treibölb 1i Lb, Stb" öffnen (nach Bedarf)

„Förderanschl Treibölb 2i Lb, Stb“ öffnen (nach Bedarf)

„Druckw Wähler Tauchb 2,4 Bb, Stb" öffnen (nach Bedarf)

„Bordv Förderanschl Tauchb 2,4 Bb, Stb" öffnen (nach Bedarf)

Ventile „Fördergr Treibölb 1,2 u. Regelb Bb, Stb" öffnen (nach Bedarf)

„Eintr Treibölfilter" öffnen

Tas Treiböl fließt über das Filter nach dem Treibölhochbehälter.

(Aus den Regelbunkern Bb, Stb 1 mit Druckluft)

„Förderanschl Regelb Bb 1, Stb 1" öffnen

Ventil „Fördergr Regelb Bb, Stb" öffnen

„Eintr Treibölfilter" öffnen

„Entlüftungsv d Regelb Bb, Stb 1" schließen

(Siehe Beschreibung der Lenz-, Flut-, Trimm- und Feuerlöschleitung.)

Druckluft anstellen

(Im übrigen siehe Beschreibung der Drucklustanlage.)

Das Treiböl fließt über das Filter und den Schalter „Treibölhochbeh" nach dem Treibölhochbehälter.

Es ist besonders darauf zu achten, daß das Entlüftungsventil des Regelbunkers beim Fahren als Bunker stets offen ist.

(Siehe Schema der 1. Treibölförderanschl; 2. Druckwasseranl)

Mit der Handlenzpumpe

Schläuche anschlagen von Saugestutzen der Handlenzpiimpe nach Schlauchanschluß Druckwasserleitung

Schläuche anschlagen von Druckstutzen Handlenzpumpe nach außenbord.

Mit der Ersatzkühlwasserpumpe

Schlauch anschlagen zwischen Saugestutzen der Handkühlwasserpumpe und Saugestutzen Druckwasserleitung

Ventil „Seewassereintr Handkühlw P" öffnen

Ventil „Kühlwasseraustr Handkühlw P" öffnen

Schlauch anschlagen zwischen Druckstutzen Handkühlwasserpumpe und Druckstutzen Wechselventilkasten

„Druckanschl Treibölübern" öffnen

„^^^^ Treibölübern" öffnen

Ventil „Saugeanschl Druckw Ltg" öffnen

„Entlüftung Treibölbunker 11 u. 21" öffnen.

^ Boot-Bauart Vlic

---———————                  D. Betriebsstörungen                     10

Beschreibung und

Betriebsvorschrift

D. Betriebsstörungen

N-Boot-Bauart VIIU

Beschreibung und Betriebsvorschrift

E. Verzeichnis der Ersatzteile und Geräte

11

Boot-Bauart VH c


Beschreibung und Betriebsvorschrift

Ers Mot

HandkühlwP

oooooa

x gliche b

Dieselmgt Stb

Tauchbunker .

Dieselmot R

A h i k /

di d2 e

£5 bß c

C/


nicht auf U93-97


TreibolverbrB eh Luftverd /


Luftverd /


Dieselmot Bb


D00O00


Treibölzubringep Bb


Treiäplzubringep Stb


Treibölsamme lb


Treibölhochbehälter


Sicherheitsv Treibölbli


40NW


b bi Ö2


Pordv Treibölübern

Anschi.. .zB Treibölmeßbeh Bb

Druckanschi. ..zB Treibölförderltg

Saugeanschi.. .zB Treibolübernahmeltg

Förderanschi.. .zP Regelb Bb /

Sordk Förderanschi.zB Tauchbunker2 Bb

Nottreiböl sörderanschl

Füllanschl TreiböThochbeh

Eintr.. .zB Treibölübern Zähler Seew Eintr HandkühN P Austr Ers Mot Ölp



Druckw Austr Handkühlw P

Kühlw Austr Handkühlw P

Schalter.. .zB Treibölzubringep Bb Treibölschalter

Wähler.. .zB Treibölzähler

Korrosionsschutzölwähler Handkühlw P

Fördergr.. .zB Treibölb a

Fördern...zB Tauchb 2Bb

Lenzen Treibölsammeib

Beipaß Treibölzubr P...zB Stb

Seew Küche


Dieselmot Bb


□POOP


2 Bb


Ers Mot


Tauchbunker 2Bb


Rdgelbunker

Bb 1


Regelzelle

Bb 2


Untertriebz

Bb


Tauchbunker 4 Bb


» Stb


Treibölsamme lb


Treibölhoch


behälter


\Sicherheitsv __TreibölbU


Treibölb 1i


Treibölb 2i


40 NW


Küilltg


ppppp


Dieselmgt Stb


Dieselmot R


Bb derltg *rnahmeltg bl ichbunker 2 Bb


HandkühlwP


Kühlw Druckv


Mehr


Tauchbunker 2 Stb


Reg el bunker

Stb 1


Unt Offz R-


Reg el teile

Stb 2


Untertriebz

Stb


—.--------Zentrale-


U Boote Bauart VIC


Treibölförderanlage sg


DruckwAustr Handkühlw P

Kühlw Austr Handkühlw P Schalten ..zB Treibölzubnngep Bb Treib öl Schalter

Wähler.. .zB Treibölzähler

Korrosionsschutzöl Wähler Handkühlw P

Fördergr.. .zB Treibölb a

Fördern ...zB Tauchb 2 Bb

Lenzen Treibölsammeib

Beipaß Treibölzubr P...zB Stb

Seew Küche


m n o


Entw TreibÖlhochbeh

Entlüften Treibölverbrauchsbeh Luftverd 1 sreibölentnähme


Richtig nach dem Stande von Mai 1940




Schalldämpfer Bb

Regelbunker Bb 1

Küche

Dieselmot R

-U Offz R


Schalldämpfer St b


Treibölsammelb


Kühlw Druckv

Handkühlw P Kasten


Tauchbunker 2 Bb


Tauchbunker


Reaeibunker Stb /


a b bi

C

C; d

e

Bordv Druckw Ltg

Druckw Wähler... zB Tauchb 2 Stb Korrosionsschutzölwähles Handkühlw P Druckw Anschi.. zB Treibölb 2i Lenzanschi Treibölb i

Druckw Schalter

Entleeren Druckw Ltg

Sicherheitsv Druckw Ltg

Unterdr Sicherheitsv Treibölb.. zB 1i

S h hi

/ k

Überdr Sicherheitsv Treibölb .. .zB 2i

Seew Eintr Handkühlw P

Druckw Austr Handkühlw P

Kühlw Austr Handkühlw P

Lenzen Treibölsammelbeh

Seew Küche


Tauchbunker 4Bb

Schalldämpfer Bb

Tauchbunker 4 Stb

rwbolsammelb

Treibölb

Küche

\Untertrieb I zelle Stb

Kühlw Druckv landkühlw P Kasten

Unter trieb !Mb zelle Bb n—%

Tauchbunker 2 Bb

Schalldämpfer St b |

Regelbunker Bb1

Regelzelle Bb 2

Regelzelle Stb 2

Tauchbunker 2Stb

Regelbunker Stb 1

innerhalb des Druckkörpers

Außerhalb des Druckkörpers

Treibölb /^i

Offz u Ob Feldw R

Zentrale---- *

Dieselmot R

~U Offz R



U Boote Bauart IZH C


Druckwasserant \10


Überdr Sicherheitsv Treibölb .. .zB 2i

Stb

Ikühlw P

Seew Eintr Handkühlw P

Druckw Austr Handkühlw P

Kühlw Austr Handkühlw P

Richtig nach dem Stande von Mai 1940

Lenzen Treibölsammelbeh

Seew Küche

zB h


Unter

Treibölsammelbunker

Jm Oberdeck

Tauchbunkei

2 Stb

Regelbunker Stb 1

Regelzelle Stb 2

Dieselmotor R

U Offz R

Zent

U Boote Bauart V

Unterti

S


Lecktreiböl Dieselmot Bb


Tauchbunker 2 Bb


Regeibunker Bb /


Regelzelle Bb 2


Treibölbunker 1i


Forderluftleitg


Ausdruck leitung


Entl Treib ölhoch


Lecktreiböl Dieselmot

Stb


Handkühlw P


Treibölbunker 1i


Prüfen. ..zB Entl Tauchb 2Stb Prüfanschl ...z B Tauchb 2 Bb Bordv Prüfanschl ...zB Treibölb 1i Entl ...zB Treibölb 2i

Bordv... zB Entl Tauchb 4 Stb

Meßschalter Treibölb.... zB 2i

Meßentn Treibölb. ..zB\ 1i Austr Meßgefäß


eibölbunker 1i


Regelbunker Bb 1


Förderluftleitg


Regelzelle Bb 2


Untertriebzelle Bb


Tauchbunker 4 Bb


/ \

Ausdrückleitung


Jm Oberdeck

eibölbunker 1i


U Os/2 R


Jm Oberdeck


Förderluftleitg


Ausdrückleitung


Regelbunker Stb 1


Regelzelle Stb 2


Untertriebzelle Stb


Tauchbunker 4 Stb


Zentrale


Offz u Ob Feldw R


U Boote Bauart ^ZH C

Treibölentlüftungs-Peil- und Prüfleitung f~8

2 Stb

2 Bb
Treibölb 1 i

b

!/



Richtig nach dem Stande von Mai 1940


Ausdrückltg

Treiböl bunker li

Tauchb

2Stb

Tauchb

2Bb

/ OH VI

luftltij

order-

luftltg

Treibölsammel

bunker

Schnitt: Treibölbunker li, Regel bunker 1 nach Zentrale gesehen

Schnitt: Diesel

Imot R u Tauchbunker 2


Tauchb 2Bb


Tauchb

0 2Stb


Regelb Bbl


Ausdruckltg


U Boote Bauart VUC


a


b


bi


c


Ci d


s


Prüfen...zB Tauchb 2Stb

Prüfanschl...zB Tauchb 2Bb

Bordv...zB Prüfanschl Treibölb 1i

Entl.. .zB Tauchb 4 Stb

Bordv.. .zB Entl Tauchb 4Stb Meßschalter Treibölb.. zB 2i Meßentn Treibölb.. .zB1i

Austr Meßgefäß


i bunker 2                                                  Schnitt: Treibölbunker 1i, Regelbunker 1 nach Zentrale gesehen                                Schnitt: Zentrale, Treibölbunker 2i Tauchbunker 4


U Boote Bauart VEC

Treiböentlüftungs-Peil-und Prüfleitung ^a

-/ü //

k


Richtig nach dem Stande von Mai 1940


Bezeichnung

SptBez

Inhalt

Bezeichnung

SptBez

Inhalt

Bezeichnung

SptBez

Inhalt

Tauchb 2 Stb

A24D34

11400

Mot Ölvorr Tank 1

018-26

3270

Best Beh 1

D10-11

149

Tauchb 2 Bb

AX-D34

11400

Mot ölvorr Tank 2

018-26

3230

Dest Beh 2

013-14

199

Tauchb 4 Stb

046-62

13400

Mot Ölsammeltank

023-25

800

Best Beh 3

014-15

153

Tauchb 4 Bb

046-62

13400

Mot Ölsammeltank

021-23

800

Regelb Stb 1

034-38

4700]

Schmutzmot Öltank

019-21

790

Regelb Bb 1

034-38

Treibölb 1i

029-40

Treibölb 2i

029-40

328$

Summe

29701

) Summe

8890

501

Surr

s

Was Was, Torp

Trimm z h

Stb

........

Hecktorp u E Masch R

Dieselmot R

U Offz R

Zent ft

Regelz Stb 2

7,850m 3


Ötyorratsta.


•lasch R

Zentrale

Dieselmot R

Offz u Ob Feldw R

Bugtorp R

U Boote Bauart VH C     Zellen-.Tank-u Bunkerplan [27]

Bezeichnung

SptBez

Inhalt

Bezeichnung

SptBez

Inhalt

Bezeichnung

SptBez

Inhalt

Bezeichnung

SptBez

Inhalt

Bezeichnung

SptBez

Inhalt

los Ölvorr Tank /

018-26

3270

Dest Beh 1

D10-11

149

Waschw Z

D53-54

485

Trinkwasser Z1

029-31

2625

Schmutzw Z1

31-32

760

1ot Ölvorr Tank 2

018-26

3230

Dest Beh 2

013-14

199

Waschw VerbrBeh

031-32

' 30

Trinkwasser Z 2

0421-44

465

Schmutzw Z 2

53-54

485

lotÖlsammeltank

023-25

800

Dest Beh 3

014-15

153

Torp Z 2

063-69

5750

Trinkwasser Z 3

0551-581

785

lat Ölsammeltank

021-23

800

chmutzmot Öltank

019-21

790

_____

_______

Summe_____

8890

501

Summe

6265

Summe

4020

Summe

1245